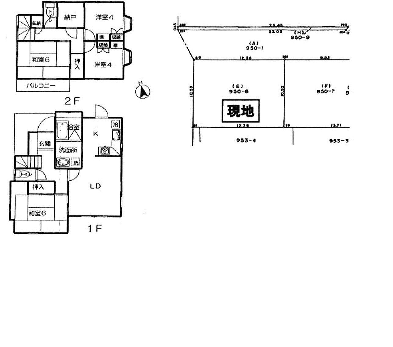
20150605211259_00001|株式会社日建不動産
現在
19
件
公開中です!
20150605211259_00001
投稿者:
日建不動産 管理者
|
公開日:
2015年6月5日
|
フルサイズ:
1288 × 1137
ピクセル
20150605205516_00001
20150606114037_00001
パーマリンク
をブックマーク
コメントは受け付けていません。
Fudousan Plugin Ver.1.4.4