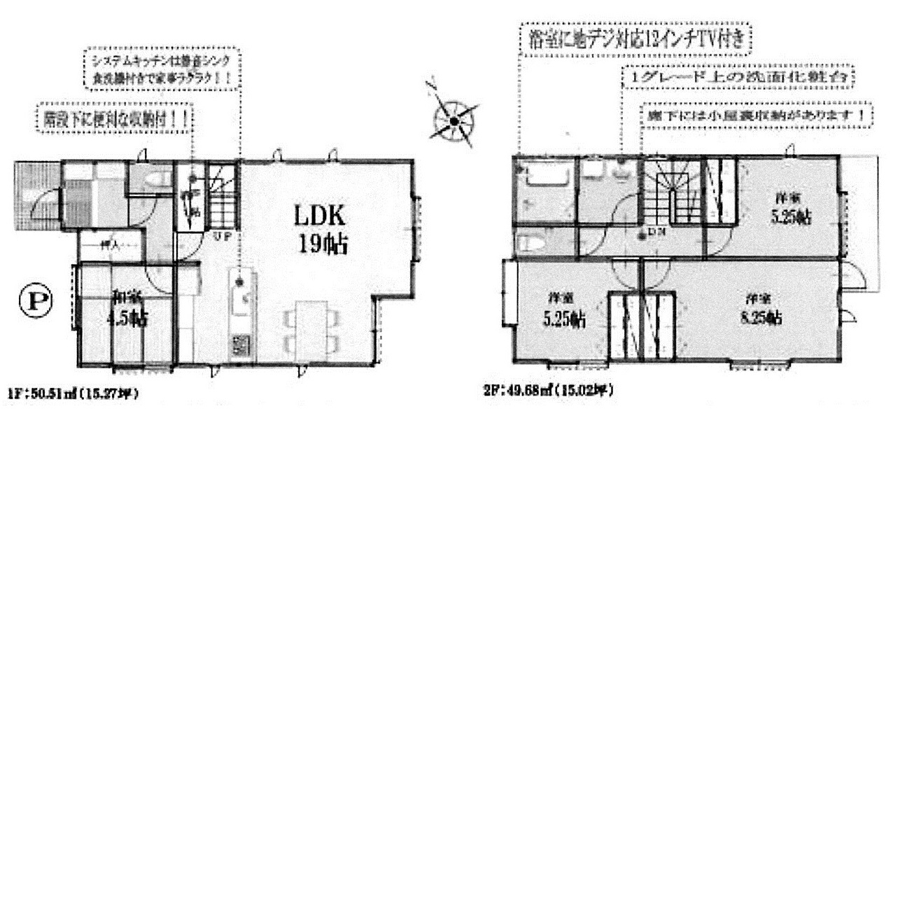
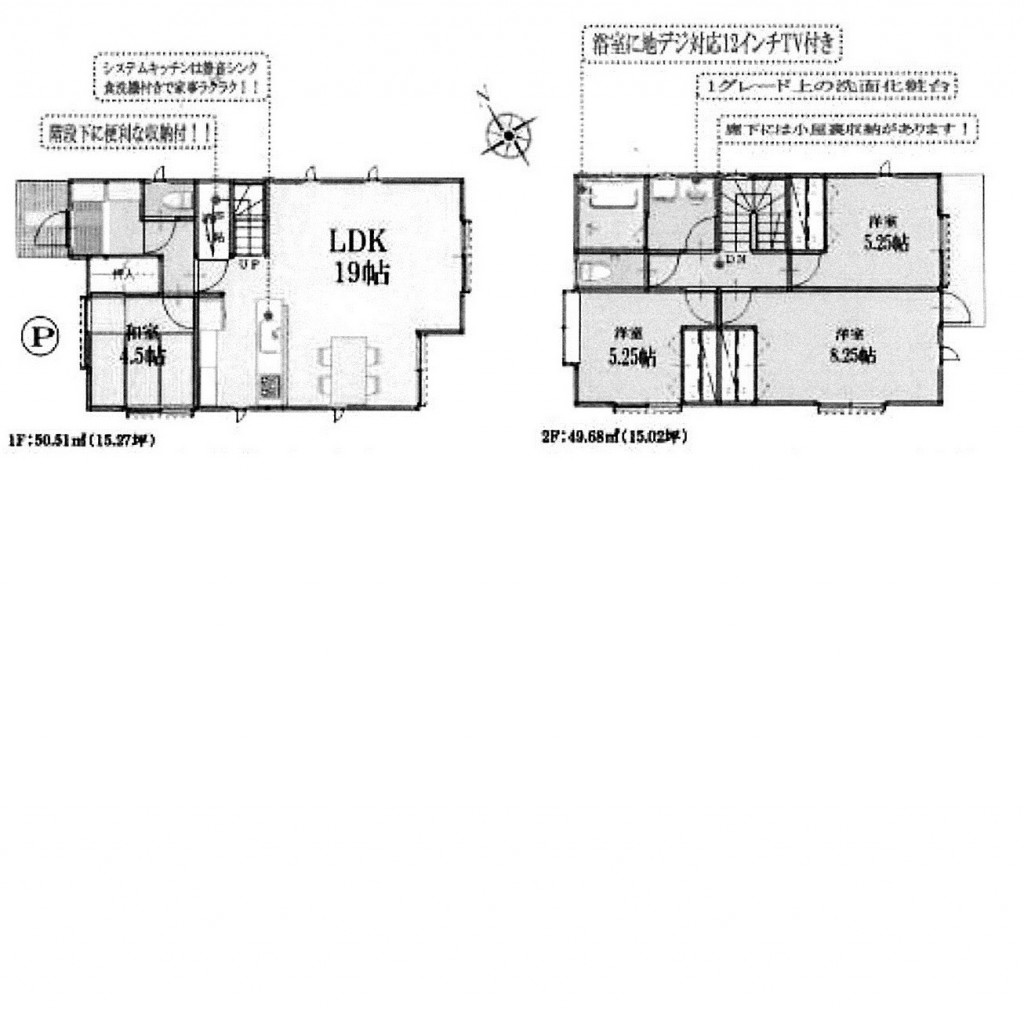
20150606205125_00001|株式会社日建不動産
現在
19
件
公開中です!
20150606205125_00001
投稿者:
日建不動産 管理者
|
公開日:
2015年6月6日
|
フルサイズ:
1306 × 1288
ピクセル
20150606203815_00001
20150606205958_00001
パーマリンク
をブックマーク
コメントは受け付けていません。
Fudousan Plugin Ver.1.4.4