中郡二宮町松根|株式会社日建不動産
現在
19
件
公開中です!
←
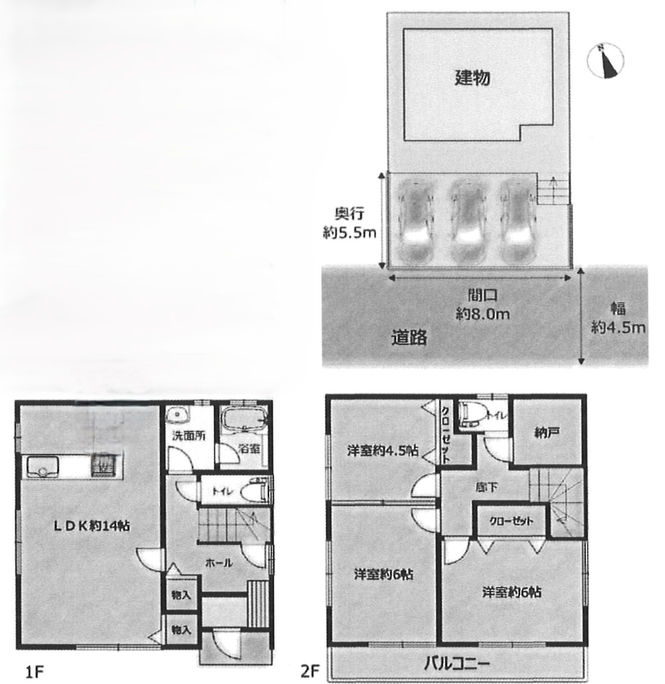
中郡二宮町松根中古戸建
中郡二宮町松根
投稿者:
日建不動産 管理者
|
公開日:
2025年11月9日
|
フルサイズ:
1326 × 1363
ピクセル
20251109145103_00001
パーマリンク
をブックマーク
コメントは受け付けていません。
Fudousan Plugin Ver.1.4.4