中郡二宮町松根中古戸建

中古戸建中古戸建

地図で見る
35021

中郡二宮町松根

この物件のお問合せ
価 格
2399万円
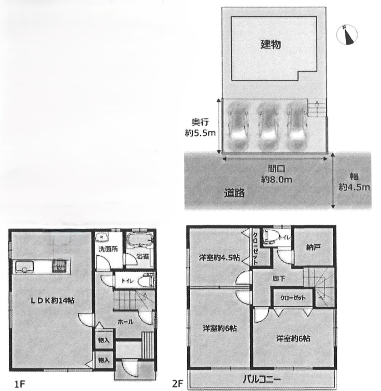
間取り 3SLDK 築年月 平成12年8月
交 通 JR東海道本線二宮駅 バス(松根) 徒歩 約23分 建物面積 80.31m²

物件画像

※各画像をクリックすると拡大して表示します


現在画像を準備中です。
(間取)
(間取)

※各画像をクリックすると拡大して表示します

【担当者のつぶやき】 
この物件のお問合せ

物件詳細情報

種別 中古戸建 価格 2399万円 間取り 3SLDK
所在地 中郡二宮町松根
交通 JR東海道本線二宮駅 バス(松根) 徒歩 約23分
築年月 平成12年8月 新築/中古 中古
建物面積 80.31m²
建物階数 地上2階階  部屋階数 2階
総戸/区画数 部屋番号
建物構造 木造
敷地全体面積 128.97m² 延べ床面積
間取内容 1階LDK14畳1室  2階洋室6畳2室  2階洋室4.5畳1室  2階S1室      
駐車場 空有 3台(車種による制限あり)
引渡/入居時期 現況
周辺環境 二宮町立二宮小学校 二宮町立二宮中学校 取引態様 仲介
設備・条件 令和7年11月中旬内外装リフォーム完成予定。
プロパンガス、公営水道、駐車場有、
制限事項
物件番号 35021
自社物 先物 状態 空有/売出中

クイック!ローンシュミレーション


物件価格 万円
頭金(万単位) 万円
月々の返済額

※35年金利0.975%(変動金利)での算出となります。別途諸費用が必要となります。

中郡二宮町松根中古戸建の関連オススメ物件

※物件掲載内容と現況に相違がある場合は現況を優先と致します。

物件お問合せフォーム

この物件に関するお問合せは下記のフォームにご記入のうえ、「お問い合わせ内容を送信する」ボタンをクリックしてください。
1営業日以内に担当者より返信させていただきます。

件名 ※件名は変更できません
お名前 *必須  例)鈴木一郎
お名前(ふりがな) *必須  例)すずきいちろう
メールアドレス *必須  例)abcde@sample.com
電話番号または
携帯電話番号 *必須
例)031112222(半角数字・ハイフン不要)
※ご見学を希望される場合は、お電話にてご連絡を差し上げる場合がございます。
ご住所
例)○○県○○市1丁目1-1
購入希望時期
ご希望される項目を
お選びください
 この物件を詳しく教えて欲しい 物件を実際に見たい 資料を送って欲しい 家探しについて相談したい 資金計画の相談がしたい
その他ご連絡事項など
ロボットではないことを確認する質問 不動産をひらがなで書くと? 


Please leave this field empty.

上記内容でよろしければ、チェックして [物件問合せする>> ] をクリックして下さい。

   


お問合せ先

株式会社日建不動産
私たちがお手伝いします。お気軽にご連絡ください。

住所 〒254-0045 神奈川県平塚市見附町32番8号
電話番号 TEL 0463-73-7517
営業時間 10:00 ~19:00
定休日 年中無休
代表者 末川 裕二
免許番号 神奈川県知事免許(1)第27464号
加盟団体 (公社)神奈川県宅地建物取引業協会
(公社)全国宅地建物取引業保証協会

非公開物件を今すぐ見る

お電話の場合はこちら